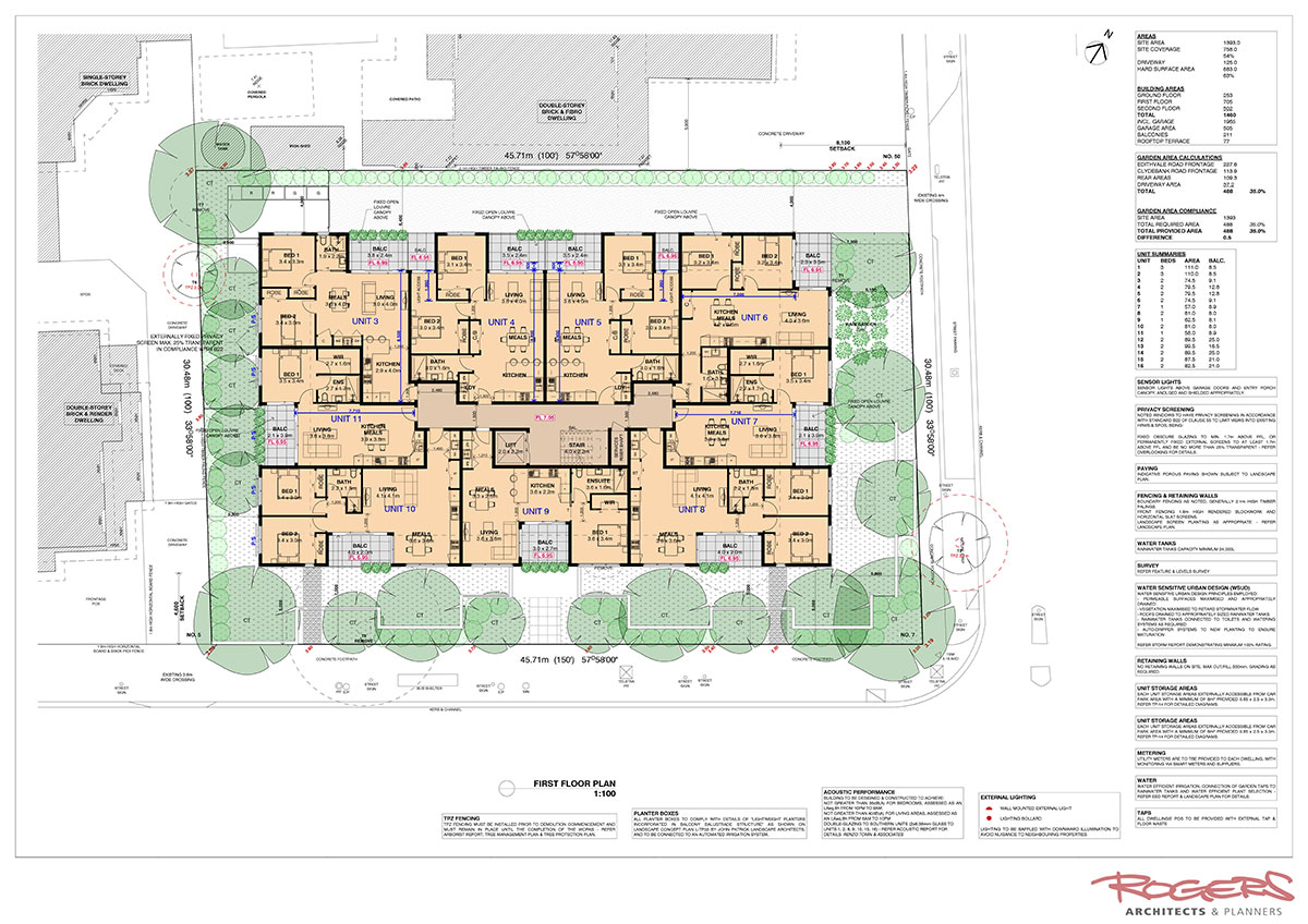
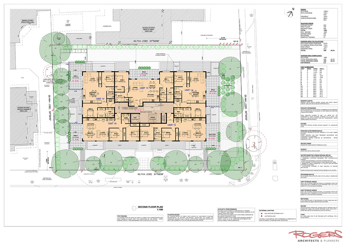
Edithvale

Townhouses & Apartments