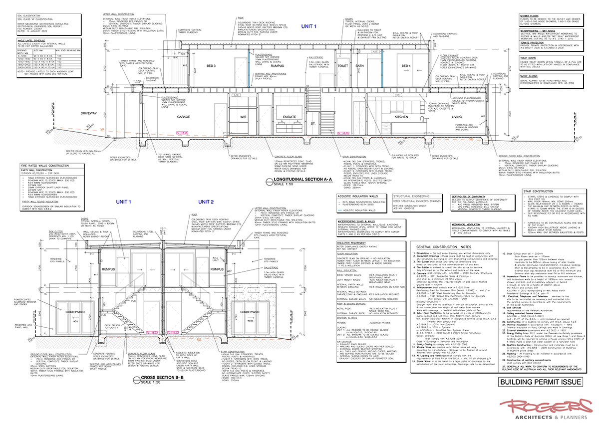
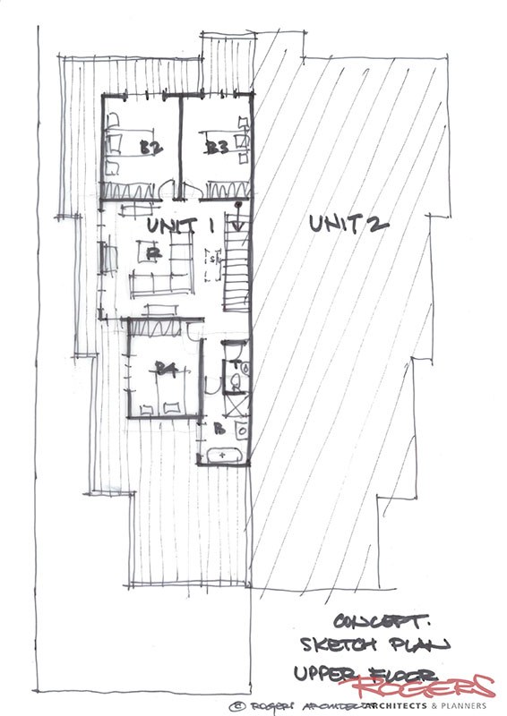
Doncaster

Townhouses & Apartments